三ツ島4丁目 中古一戸建て

9月22日 値下げ

1,180万円

大阪府門真市三ツ島4丁目

地下鉄長堀鶴見緑地「門真南」駅徒歩18分

京阪本線「古川橋」駅徒歩38分

京阪本線「大和田」駅徒歩36分

価格
1,180万円
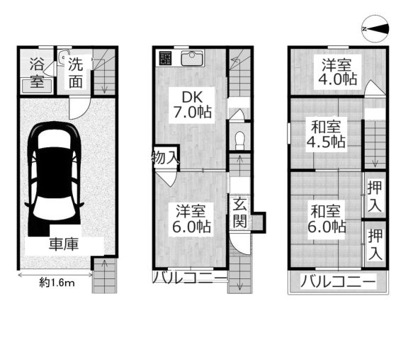
間取り
4DK
土地面積
42.38㎡
所在地
大阪府門真市三ツ島4丁目
交通

地下鉄長堀鶴見緑地門真南」駅 徒歩18分

京阪本線古川橋」駅 徒歩38分

京阪本線大和田」駅 徒歩36分

建物面積
83.89㎡
築年月
1985年6月(築40年)

現地見学会

日時 2023年10月27日 ~ 2024年1月27日
  •  ■掲載物件をご覧頂きありがとうございます■

    ・当社では随時「現地見学会」を開催しております。
    ・朝昼夜問わずご案内可能でございますのでお時間気になさらずお問合せ下さい。
    ・現地での待ち合わせ、来店してからのご案内、指定地へお迎えに上がる事も可能でございます。
    ・居住中物件の内覧は事前に見学予約が必要となります。

    【所要時間】
    〇お電話での見学予約 5分~
    〇ご来店からの見学予約 30分~
    ※お客様のご希望や、資金計画、住宅ローン、減税などのご相談も丁寧にご説明致します。

    〇現地ご案内 現地到着後30分~
    ※時間は目安となっておりますのでお客様のご都合をお申し付け下さい!
    ※また複数物件を見学する際は1件につき移動時間+30分~程度でご参考下さい。

物件の特徴

  • TVモニタ付きインターホン

  • 独立洗面台

セールスポイント

R5年7月内装リフォーム済の綺麗な物件です。
追炊機能浴室や温水洗浄便座など設備充実!

ポイント

門真市三ツ島4丁目 門真南駅 4DK 平坦地 リフォーム

担当者のコメント

大江 健治

R5年7月内装リフォーム済の綺麗な物件です。
追炊機能浴室や温水洗浄便座など設備充実!

■営業時間 9:30~20:00 
■即日案内可能!※当日・翌日のご案内はお電話でのお問合せがスムーズ
■定休日 毎週水曜日 夏季 年末年始

◇弊社ホームページよりLINEでのお問合せも好評!
◇不動産情報サイト未掲載物件、弊社ホームページに多数掲載!
◇学校区物件検索も充実!ご希望の学校区での物件探しに便利!
「リクソラ住宅販売」で検索!是非ご覧ください

他の気になる物件・他不動産会社・他サイトの掲載物件もまとめてご案内可能
リフォームやリノベーションの事もあわせてご相談下さい

【住宅ローン無料相談会 随時開催中】
〇お客様の条件にベストな住宅ローン商品のご提案
〇住宅ローンの金利や優遇率、審査基準などを詳しくご説明
〇現在の借入や過去の借入による住宅ローンへの問題解決
〇収入や勤務年数、雇用形態、自営業、自己資金などによる住宅ローンへの問題解決

是非とも弊社にお問合せ下さい

基本情報

販売戸数
1戸
総戸数
1戸
間取り / 詳細
4DK
向き
西
建物面積(坪数)
83.89㎡(25.37坪)
土地面積(坪数)
42.38㎡(12.81坪)
建ぺい率 /
容積率
60%/200%
築年月
1985年6月(築40年)
駐車場 /
月額料金
有(1台) 0円
土地権利
所有権
土地
(敷金 / 保証金)
- / -
建物構造
木造(一部鉄筋コンクリート) / 3階建
傾斜地部分面積
-
路地状敷地
-
私道負担面積
-
セットバック
-
高圧線下面積
-
施工会社
-
用途地域
準工業
地目 / 地勢
宅地 / 平坦
接道状況
一方(西 4.7m)
国土法届出要否
不要
都市計画
市街化区域
総区画数 /
販売区画数
1区画/1区画
現況
空家
その他
法令上の制限
-
取引態様
仲介
引渡し
即時
リフォーム
    2023年7月
    キッチン 浴室 トイレ 壁 床 全室
取引条件の
有効期限
2026年01月25日

設備条件

設備条件
  • ペット相談 / ペット飼育可 / 陽当り良好 / リフォーム済 / 眺望良好 / 現地見学会 / バルコニー / 都市ガス / 公営水道 / 公共下水 / システムキッチン / 追焚機能浴室 / 温水洗浄便座 / 洗面台 / 独立洗面台 / TVモニタ付インターホン
設備(その他)
    -

その他

物件番号
80585922
管理コード
-
建築確認番号
-
情報更新日
2026年01月11日
次回更新予定日
2026年01月25日
取扱会社
  • 株式会社リクソラ住宅販売
  • 大阪府寝屋川市国松町16-10  102
  • TEL:0120-088-715
  • 大阪府知事 (3) 第58221号
  • (公社)全日本不動産協会(公社)不動産保証協会(公社)近畿圏不動産流通機構(近畿レインズ)東急リバブル(株)パートナーシップ加盟店
備考
設備も充実した、快適な暮らしのある4DKの物件はこちらです。建物面積83.89㎡の物件はいかがですか。魅力溢れる玄関は玄関収納を利用してることが多いです。斜面の多い場所よりも、坂の少ない平坦地での生活はいかがですか。当社では、門真市エリアや地下鉄長堀鶴見緑地門真南付近での一戸建て情報をご紹介致します。まずはお気軽にお問い合わせ下さい。

周辺施設

  • 門真市立認定こども園砂子みなみこども園の画像

    幼稚園

    門真市立認定こども園砂子みなみこども園

    609m(8分)

  • ファミリーマート 門真三ツ島店の画像

    コンビニエンスストア

    ファミリーマート 門真三ツ島店

    632m(8分)

  • 幼保連携型認定こども園三ツ島保育園の画像

    保育園

    幼保連携型認定こども園三ツ島保育園

    872m(11分)

  • 門真市立第七中学校の画像

    中学校

    門真市立第七中学校

    918m(12分)

  • スーパーマーケット コノミヤ 門真千石東店の画像

    スーパー

    スーパーマーケット コノミヤ 門真千石東店

    1001m(13分)

  • たにざわクリニックの画像

    小児科

    たにざわクリニック

    1056m(14分)

  • いそのクリニックの画像

    総合病院

    いそのクリニック

    1195m(15分)

  • 門真市立砂子小学校の画像

    小学校

    門真市立砂子小学校

    1248m(16分)

  • 大阪府立門真なみはや高校の画像

    高校

    大阪府立門真なみはや高校

    1260m(16分)

  • 門真南の画像

    門真南

    1349m(17分)

支払いシミュレーション

月々の支払額
9.6
購入希望物件価格
万円
頭金
万円
金利
%
返済額(ボーナス1回分)
万円
返済期間

※ボーナスは自動で年2回分で計算されます。

近隣の物件

  1. 石原町 中古一戸建て

    門真市石原町

    5K (72.65㎡)

    1,180万円

  2. 御堂町 中古一戸建て

    門真市御堂町

    4DK (79.52㎡)

    1,280万円

  3. 本町 中古一戸建て

    門真市本町

    4LDK (70.56㎡)

    980万円

  4. 江端町 中古一戸建て

    門真市江端町

    3SLDK (115.10㎡)

    1,980万円

三ツ島4丁目 中古一戸建て

三ツ島4丁目 中古一戸建て

1,180万円

-

4DK(83.89㎡)

お気軽にお問い合わせください

LINEからお問い合わせ 無料お問い合わせ

株式会社リクソラ住宅販売

0120-088-715

営業時間:9:30~19:30

(休:水曜・夏季・年末年始)