森北2丁目 中古一戸建て

2月9日 値下げ

1,280万円

大阪府交野市森北2丁目

片町線「河内磐船」駅徒歩5分

京阪交野線「河内森」駅徒歩8分

京阪交野線「私市」駅徒歩23分

価格
1,280万円
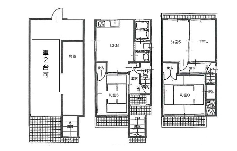
間取り
4DK
土地面積
57.60㎡
所在地
大阪府交野市森北2丁目
交通

片町線河内磐船」駅 徒歩5分

京阪交野線河内森」駅 徒歩8分

京阪交野線私市」駅 徒歩23分

建物面積
97.29㎡
築年月
1990年1月(築36年)

現地見学会

日時 2026年2月13日 ~ 2026年5月12日
  •  ■掲載物件をご覧頂きありがとうございます■

    ・当社では随時「現地見学会」を開催しております。
    ・朝昼夜問わずご案内可能でございますのでお時間気になさらずお問合せ下さい。
    ・現地での待ち合わせ、来店してからのご案内、指定地へお迎えに上がる事も可能でございます。
    ・居住中物件の内覧は事前に見学予約が必要となります。

    【所要時間】
    〇お電話での見学予約 5分~
    〇ご来店からの見学予約 30分~
    ※お客様のご希望や、資金計画、住宅ローン、減税などのご相談も丁寧にご説明致します。

    〇現地ご案内 現地到着後30分~
    ※時間は目安となっておりますのでお客様のご都合をお申し付け下さい!
    ※また複数物件を見学する際は1件につき移動時間+30分~程度でご参考下さい。

セールスポイント

「森北2丁目 中古一戸建て」のここがイチオシ。2駅利用できる場所にあるので利便性が高いです。建物面積は97.29平米となっており広さも十分ではないでしょうか。ゆったりとした間取りの4DKです。住みよい環境を求め続けているならば、当社にお任せください。たくさんの不動産の中から、お客様の合った一戸建てを紹介いたします。

ポイント

森北2丁目 4DK 河内磐船駅 河内森駅 北西向き 駅徒歩5分 小学校徒歩3分 スーパー徒歩5分 病院徒歩10分 岩船小学校区 第四中学校区 駐車2台 閑静な住宅地 和室

担当者のコメント

渡部 琴乃

★4DK 北西向き 2駅利用可
★JR片町線河内磐船駅徒歩5分 小学校徒歩3分 スーパー徒歩5分
★駐車2台可能 和室 3階建て

■営業時間 9:30~20:00 
■即日案内可能!※当日・翌日のご案内はお電話でのお問合せがスムーズ
■定休日 毎週水曜日 夏季 年末年始

◇弊社ホームページよりLINEでのお問合せも好評!
◇不動産情報サイト未掲載物件、弊社ホームページに多数掲載!
◇学校区物件検索も充実!ご希望の学校区での物件探しに便利!
「リクソラ住宅販売」で検索!是非ご覧ください

他の気になる物件・他不動産会社・他サイトの掲載物件もまとめてご案内可能
リフォームやリノベーションの事もあわせてご相談下さい

【住宅ローン無料相談会 随時開催中】
〇お客様の条件にベストな住宅ローン商品のご提案
〇住宅ローンの金利や優遇率、審査基準などを詳しくご説明
〇住宅ローンとリフォームローンの一体型商品もご提案
〇仕事や収入・現在過去の借入による住宅ローンへの問題解決

是非とも弊社にお問合せ下さい

基本情報

販売戸数
1戸
総戸数
1戸
間取り / 詳細
4DK
向き
北西
建物面積(坪数)
97.29㎡(29.43坪)
土地面積(坪数)
57.60㎡(17.42坪)
建ぺい率 /
容積率
60%/200%
築年月
1990年1月(築36年)
駐車場 /
月額料金
有(2台) 0円
土地権利
所有権
土地
(敷金 / 保証金)
- / -
建物構造
木造 / 3階建
傾斜地部分面積
-
路地状敷地
-
私道負担面積
-
セットバック
高圧線下面積
-
施工会社
-
用途地域
第二種中高層住居専用
地目 / 地勢
宅地 / 平坦
接道状況
二方(北西 公道 3.0m)(南東 公道 9.9m)
国土法届出要否
不要
都市計画
市街化区域
総区画数 /
販売区画数
1区画/1区画
現況
空家
その他
法令上の制限
-
取引態様
仲介
引渡し
即時
取引条件の
有効期限
2026年03月13日

設備条件

設備条件
  • ペット相談 / ペット飼育可 / 陽当り良好 / 閑静な住宅地 / 現地見学会 / バルコニー / 都市ガス / 公営水道 / 公共下水 / 駐車2台可
設備(その他)
    -

その他

物件番号
94550807
管理コード
-
建築確認番号
-
情報更新日
2026年02月27日
次回更新予定日
2026年03月13日
取扱会社
  • 株式会社リクソラ住宅販売
  • 大阪府寝屋川市国松町16-10  102
  • TEL:0120-088-715
  • 大阪府知事 (3) 第58221号
  • (公社)全日本不動産協会(公社)不動産保証協会(公社)近畿圏不動産流通機構(近畿レインズ)東急リバブル(株)パートナーシップ加盟店
備考
小学校が十分通学できる範囲にあります。交野市立岩船小学校が徒歩3分です。スーパーも近いので、お買い物も楽々ですね。こだわりの条件として選ばれることが多い、駅徒歩5分の駅近物件です。実りある充実した生活が出来るお住まいを探すなら、当社にお任せください。住まいが変われば、人生が変わります。ぜひご検討ください。

周辺施設

  • 交野市立岩船小学校の画像

    小学校

    交野市立岩船小学校

    187m(3分)

  • ファミリーマート 交野森北一丁目店の画像

    コンビニエンスストア

    ファミリーマート 交野森北一丁目店

    278m(4分)

  • ながお心療内科の画像

    神経科・精神科

    ながお心療内科

    371m(5分)

  • ひびき眼科クリニックの画像

    眼科

    ひびき眼科クリニック

    371m(5分)

  • 大山医院の画像

    内科

    大山医院

    371m(5分)

  • 藤原皮フ科の画像

    皮膚科

    藤原皮フ科

    371m(5分)

  • 関西スーパー 河内磐船店の画像

    スーパー

    関西スーパー 河内磐船店

    382m(5分)

  • 大阪府立交野高校の画像

    高校

    大阪府立交野高校

    419m(6分)

  • 開智幼稚園の画像

    幼稚園

    開智幼稚園

    507m(7分)

  • 河内磐船の画像

    河内磐船

    572m(8分)

  • 医療法人寺嶋・塚田こどもクリニックの画像

    小児科

    医療法人寺嶋・塚田こどもクリニック

    630m(8分)

  • 交野市立休日急病診療所の画像

    総合病院

    交野市立休日急病診療所

    772m(10分)

  • 交野市立第四中学校の画像

    中学校

    交野市立第四中学校

    877m(11分)

  • 認定こども園私部保育園の画像

    保育園

    認定こども園私部保育園

    1230m(16分)

支払いシミュレーション

月々の支払額
購入希望物件価格
万円
頭金
万円
金利
%
返済額(ボーナス1回分)
万円
返済期間

※ボーナスは自動で年2回分で計算されます。

近隣の物件

  1. 私部4丁目 中古一戸建て

    交野市私部4丁目

    4LDK (107.73㎡)

    1,580万円

  2. 妙見東5丁目 中古一戸建て

    交野市妙見東5丁目

    4LDK (97.20㎡)

    1,580万円

  3. 妙見東 中古一戸建て

    交野市妙見東2丁目

    3LDK (90.01㎡)

    3,080万円

  4. 星田西3丁目 中古一戸建て

    交野市星田西3丁目

    4LDK (158.18㎡)

    4,180万円

よく見られている物件

  1. 田口1丁目 中古一戸建て

    枚方市田口1丁目

    2LDK (54.38㎡)

    1,380万円

  2. 末広町 一戸建て

    寝屋川市末広町

    3LDK (95.64㎡)

    2,680万円

  3. 八幡三反長 未入居一戸建て

    八幡市八幡三反長

    2LDK (78.52㎡)

    4,980万円

  4. 東香里園町 中古一戸建て

    寝屋川市東香里園町

    5SLDK (144.04㎡)

    8,480万円

森北2丁目 中古一戸建て

森北2丁目 中古一戸建て

1,280万円

-

4DK(97.29㎡)

お気軽にお問い合わせください

LINEからお問い合わせ 無料お問い合わせ

株式会社リクソラ住宅販売

0120-088-715

営業時間:9:30~19:30

(休:水曜・夏季・年末年始)