グランフィーネ枚方長尾

2,380万円

大阪府枚方市長尾谷町2丁目

片町線「長尾」駅徒歩15分

片町線「藤阪」駅徒歩19分

片町線「松井山手」駅徒歩46分

価格
2,380万円
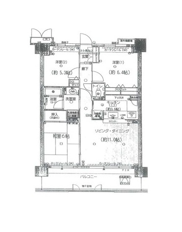
間取り/面積
3LDK/65.40㎡
所在地
大阪府枚方市長尾谷町2丁目
築年
1998年3月(築28年)
駐車
空無
交通

片町線長尾」駅 徒歩15分

片町線藤阪」駅 徒歩19分

片町線松井山手」駅 徒歩46分

グランフィーネ枚方長尾の基本情報

物件名
グランフィーネ枚方長尾
価格
2,380万円
築年月
1998年3月(築28年)
総戸数
192戸
所在地
大阪府枚方市長尾谷町2丁目
交通

片町線長尾」駅 徒歩15分

片町線藤阪」駅 徒歩19分

片町線松井山手」駅 徒歩46分

グランフィーネ枚方長尾の詳細情報

設備条件
  • 閑静な住宅地
  • エレベーター
  • 駐輪場
  • バイク置場あり
設備(その他)
    -
駐車場/月額
空無/3,500円 駐車料金 3500円~8500円
土地権利
所有権
国土法届出
不要
用途地域
第一種中高層住居専用
販売戸数 / 総戸数
1戸 / 192戸
管理形態
管理会社に全部委託
管理員の勤務形態
巡回
管理会社
-
取引態様
仲介
引渡し
相談
備考
歩いて309mの場所に、生活協同組合おおさかパルコープ ながお店があります。駅徒歩15分の場所にある物件です。共有部分も清潔感があり、綺麗な中古マンションです。この物件は11階建てとなっており、見晴らしもいいです。枚方市で不動産をお探しなら、地域に密着した当社にお任せ下さい。信頼と実績を誇る当社は、確かな情報をご提供致します。

グランフィーネ枚方長尾のコメント(おすすめポイント)

徒歩9分の場所に枚方市立田口山小学校があります。駅まで徒歩15分の場所にある物件です。こちらはエレベーター付き物件です。地上11階建ての物件です。当社は確かな不動産情報をご提供しております。こだわりやご要望などがあれば、メール又はお電話にて当社にご連絡下さい。経験豊富なスタッフがしっかりとサポート致します。

グランフィーネ枚方長尾で募集中の物件

  1. 4階

    19.78坪 (65.40㎡)

    2,380万円(120.32万円/坪)

周辺施設

  • 生活協同組合おおさかパルコープ ながお店の画像

    スーパー

    生活協同組合おおさかパルコープ ながお店

    309m(4分)

  • 藤井医院の画像

    小児科

    藤井医院

    455m(6分)

  • 枚方市立菅原保育所の画像

    保育園

    枚方市立菅原保育所

    478m(6分)

  • 私立長尾谷高校の画像

    高校

    私立長尾谷高校

    622m(8分)

  • ジャパン 枚方長尾店の画像

    ディスカウントショップ

    ジャパン 枚方長尾店

    637m(8分)

  • 枚方市立田口山小学校の画像

    小学校

    枚方市立田口山小学校

    657m(9分)

  • 枚方市立長尾西中学校の画像

    中学校

    枚方市立長尾西中学校

    762m(10分)

  • 枚方市立田口山幼稚園の画像

    幼稚園

    枚方市立田口山幼稚園

    1039m(13分)

  • 長尾の画像

    長尾

    1246m(16分)

  • 枚方市立長尾中学校の画像

    中学校

    枚方市立長尾中学校

    1737m(22分)

  • 枚方公済病院の画像

    総合病院

    枚方公済病院

    1823m(23分)

  • 私立大阪国際大学の画像

    大学

    私立大阪国際大学

    2106m(27分)

近隣の物件

  1. 枚方市東中振1丁目

    4LDK (98.96㎡)

    1,140万円

  2. 枚方市東山1丁目

    3LDK (69.58㎡)

    2,790万円

  3. 枚方市伊加賀西町

    3LDK (70.06㎡)

    2,599万円

  4. 枚方市香里ケ丘9丁目

    2LDK (67.91㎡)

    1,400万円

よく見られている物件

  1. 門真市松生町

    3LDK (63.13㎡)

    5,480万円

  2. 寝屋川市豊野町

    3LDK (65.29㎡)

    2,080万円

  3. 寝屋川市石津東町

    4LDK (87.79㎡)

    3,380万円

  4. 枚方市伊加賀西町

    3LDK (75.08㎡)

    2,390万円

グランフィーネ枚方長尾

お気軽にお問い合わせください

LINEからお問い合わせ 無料お問い合わせ

株式会社リクソラ住宅販売

0120-088-715

営業時間:9:30~19:30

(休:水曜・夏季・年末年始)