南寺方東通4丁目 中古一戸建て

2月20日 値下げ

2,180万円

大阪府守口市南寺方東通4丁目

地下鉄長堀鶴見緑地「鶴見緑地」駅徒歩22分

地下鉄今里筋線「清水」駅徒歩19分

地下鉄今里筋線「新森古市」駅徒歩22分

価格
2,180万円
間取り
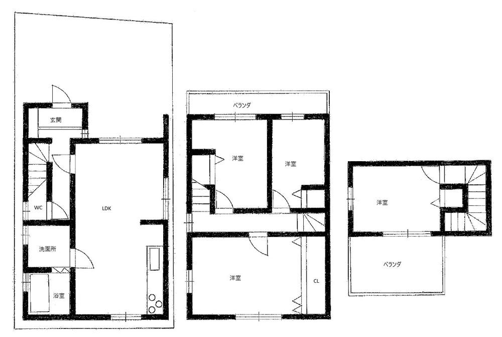
4LDK
土地面積
48.59㎡
所在地
大阪府守口市南寺方東通4丁目
交通

地下鉄長堀鶴見緑地鶴見緑地」駅 徒歩22分

地下鉄今里筋線清水」駅 徒歩19分

地下鉄今里筋線新森古市」駅 徒歩22分

建物面積
108.93㎡
築年月
1998年3月(築28年)

現地見学会

日時 2026年2月13日 ~ 2026年5月12日
  •  ■掲載物件をご覧頂きありがとうございます■

    ・当社では随時「現地見学会」を開催しております。
    ・朝昼夜問わずご案内可能でございますのでお時間気になさらずお問合せ下さい。
    ・現地での待ち合わせ、来店してからのご案内、指定地へお迎えに上がる事も可能でございます。
    ・居住中物件の内覧は事前に見学予約が必要となります。

    【所要時間】
    〇お電話での見学予約 5分~
    〇ご来店からの見学予約 30分~
    ※お客様のご希望や、資金計画、住宅ローン、減税などのご相談も丁寧にご説明致します。

    〇現地ご案内 現地到着後30分~
    ※時間は目安となっておりますのでお客様のご都合をお申し付け下さい!
    ※また複数物件を見学する際は1件につき移動時間+30分~程度でご参考下さい。

物件の特徴

  • TVモニタ付きインターホン

セールスポイント

近くにはセブンイレブン 守口南寺方東通店(徒歩3分)がありちょっとした買い物に便利です。フローリングは掃除が簡単です。こちらの物件の間取りは4LDKとなっており、室内も広々です。当社では数多くの不動産を取り扱っておりますので、お客様の希望する不動産を見つけ、よりよい生活を実現させます。ぜひご検討ください。

ポイント

南寺方東通4丁目 4LDK 東向き 鶴見緑地駅 小学校徒歩8分 スーパー徒歩10分 病院徒歩8分 3階建て 和室 屋根裏収納 駐車場 錦小学校 錦中学校 システムキッチン トイレ2ヶ所

担当者のコメント

小檜山 紋加

★4LDK 東向き 3階建て
★小学校徒歩8分 スーパー徒歩10分 病院徒歩8分
★駐車1台 トイレ2ヶ所 和室 屋根裏収納

■営業時間 9:30~20:00 
■即日案内可能!※当日・翌日のご案内はお電話でのお問合せがスムーズ
■定休日 毎週水曜日 夏季 年末年始

◇弊社ホームページよりLINEでのお問合せも好評!
◇不動産情報サイト未掲載物件、弊社ホームページに多数掲載!
◇学校区物件検索も充実!ご希望の学校区での物件探しに便利!
「リクソラ住宅販売」で検索!是非ご覧ください

他の気になる物件・他不動産会社・他サイトの掲載物件もまとめてご案内可能
リフォームやリノベーションの事もあわせてご相談下さい

【住宅ローン無料相談会 随時開催中】
〇お客様の条件にベストな住宅ローン商品のご提案
〇住宅ローンの金利や優遇率、審査基準などを詳しくご説明
〇住宅ローンとリフォームローンの一体型商品もご提案
〇仕事や収入・現在過去の借入による住宅ローンへの問題解決

是非とも弊社にお問合せ下さい

基本情報

販売戸数
1戸
総戸数
1戸
間取り / 詳細
4LDK
向き
建物面積(坪数)
108.93㎡(32.95坪)
土地面積(坪数)
48.59㎡(14.69坪)
建ぺい率 /
容積率
60%/200%
築年月
1998年3月(築28年)
駐車場 / 月額
有(1台) / 0円
土地権利
所有権
土地
(敷金 / 保証金)
- / -
建物構造
木造(一部鉄筋コンクリート) / 3階建
傾斜地部分面積
-
路地状敷地
-
私道負担面積
-
セットバック
-
高圧線下面積
-
施工会社
-
用途地域
準工業
地目 / 地勢
宅地 / 平坦
接道状況
一方(東 公道 4.0m)
国土法届出要否
不要
都市計画
市街化区域
総区画数 /
販売区画数
1区画/1区画
現況
居住中
その他
法令上の制限
-
取引態様
仲介
引渡し
相談
取引条件の
有効期限
2026年04月28日

設備条件

設備条件
  • ペット相談 / ペット飼育可 / 陽当り良好 / 閑静な住宅地 / 現地見学会 / フローリング / バルコニー / 都市ガス / 公営水道 / 公共下水 / システムキッチン / 温水洗浄便座 / トイレ2ヶ所 / ユニットバス / 屋根裏収納 / 収納豊富 / TVモニタ付インターホン
設備(その他)
    -

その他

物件番号
99260107
管理コード
-
建築確認番号
-
情報更新日
2026年04月14日
次回更新予定日
2026年04月28日
取扱会社
  • 株式会社リクソラ住宅販売
  • 大阪府寝屋川市国松町16-10  102
  • TEL:0120-088-715
  • 大阪府知事 (3) 第58221号
  • (公社)全日本不動産協会(公社)不動産保証協会(公社)近畿圏不動産流通機構(近畿レインズ)東急リバブル(株)パートナーシップ加盟店
備考
こだわりの条件の中でも好評の屋根裏収納付き。ファミリーに好評。経済的にもうれしい中古の戸建て物件です。広々として段差の少ない平坦地は日常の生活も送りやすい場所となっております。この物件は広々としたシステムキッチンなので、普段の料理も楽しくなるでしょう。当社では豊富な不動産情報をご用意して、お客様をお待ちしております。皆様がより良い暮らしを送れるような不動産を紹介いたしますので、ぜひご利用ください。

南寺方東通4丁目 中古一戸建ての他の物件

  1. 4LDK (98.21㎡)

    2,980万円(100.34万円/坪)

周辺施設

  • セブンイレブン 守口南寺方東通店の画像

    コンビニエンスストア

    セブンイレブン 守口南寺方東通店

    172m(3分)

  • Bambi保育園の画像

    保育園

    Bambi保育園

    522m(7分)

  • 守口市立錦中学校の画像

    中学校

    守口市立錦中学校

    522m(7分)

  • 守口市立錦小学校の画像

    小学校

    守口市立錦小学校

    567m(8分)

  • 鶴見緑地病院の画像

    総合病院

    鶴見緑地病院

    583m(8分)

  • 森脇クリニックの画像

    内科

    森脇クリニック

    647m(9分)

  • ライフ 守口寺方店の画像

    スーパー

    ライフ 守口寺方店

    779m(10分)

  • にしき認定こども園の画像

    幼稚園

    にしき認定こども園

    1000m(13分)

支払いシミュレーション

月々の支払額

※実際の金額と異なる場合があります。

購入希望物件価格
万円
頭金
万円
金利
%
返済額(ボーナス1回分)
万円
返済期間

※ボーナスは自動で年2回分で計算されます。

近隣の物件

  1. 金田町1丁目 中古一戸建て

    守口市金田町1丁目

    4LDK (108.24㎡)

    2,480万円

  2. 佐太中町7丁目 中古一戸建て

    守口市佐太中町7丁目

    3LDK (95.21㎡)

    2,360万円

  3. 藤田町5丁目 中古一戸建て

    守口市藤田町5丁目

    4LDK (116.01㎡)

    1,480万円

  4. 高瀬町1丁目 中古一戸建て

    守口市高瀬町1丁目

    5LDK (96.88㎡)

    3,580万円

よく見られている物件

  1. 田口1丁目 中古一戸建て

    枚方市田口1丁目

    2LDK (54.38㎡)

    1,080万円

  2. 末広町 一戸建て

    寝屋川市末広町

    3LDK (95.64㎡)

    2,680万円

  3. 東香里園町 中古一戸建て

    寝屋川市東香里園町

    5SLDK (144.04㎡)

    8,480万円

  4. 八幡三反長 未入居一戸建て

    八幡市八幡三反長

    2LDK (78.52㎡)

    4,480万円

南寺方東通4丁目 中古一戸建て

南寺方東通4丁目 中古一戸建て

2,180万円

-

4LDK(108.93㎡)

お気軽にお問い合わせください

LINEからお問い合わせ 無料お問い合わせ

株式会社リクソラ住宅販売

0120-088-715

営業時間:9:30~19:30

(休:水曜・夏季・年末年始)