私部7丁目 中古一戸建て

9月4日 値下げ

1,980万円

大阪府交野市私部7丁目

京阪交野線「交野市」駅徒歩18分

片町線「河内磐船」駅徒歩25分

片町線「津田」駅徒歩22分

価格
1,980万円
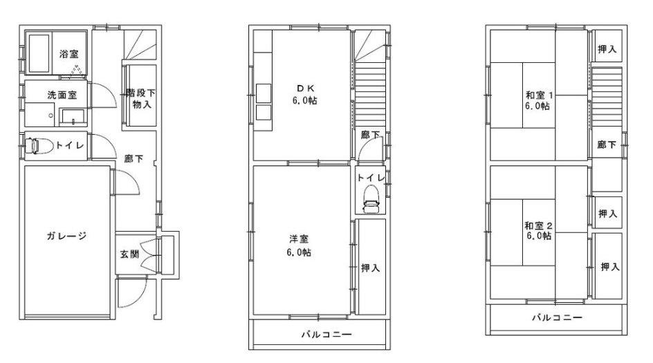
間取り
3LDK
土地面積
80.09㎡
所在地
大阪府交野市私部7丁目
交通

京阪交野線交野市」駅 徒歩18分

片町線河内磐船」駅 徒歩25分

片町線津田」駅 徒歩22分

建物面積
79.64㎡
築年月
1997年7月(築28年)

現地見学会

日時 2024年11月29日 ~ 2025年3月1日
  •  ■掲載物件をご覧頂きありがとうございます■

    ・当社では随時「現地見学会」を開催しております。
    ・朝昼夜問わずご案内可能でございますのでお時間気になさらずお問合せ下さい。
    ・現地での待ち合わせ、来店してからのご案内、指定地へお迎えに上がる事も可能でございます。
    ・居住中物件の内覧は事前に見学予約が必要となります。

    【所要時間】
    〇お電話での見学予約 5分~
    〇ご来店からの見学予約 30分~
    ※お客様のご希望や、資金計画、住宅ローン、減税などのご相談も丁寧にご説明致します。

    〇現地ご案内 現地到着後30分~
    ※時間は目安となっておりますのでお客様のご都合をお申し付け下さい!
    ※また複数物件を見学する際は1件につき移動時間+30分~程度でご参考下さい。

物件の特徴

  • カウンターキッチン

  • 独立洗面台

セールスポイント

畳ならではのゆっくりとくつろげる和室のある物件です。こちらの物件は南向きです。玄関ポーチがあると雨の水滴をはらうのに便利ですね。すぐに入居できるので、お待ちいただくことはありません。これからの生活を、今までよりも快適なものにしませんか。まずはお住まいをよりよいものにしていきましょう。ぜひ当社での不動産探しをご検討ください。

ポイント

交野市私部7丁目 交野市駅 3LDK 駐車場あり カーポート 角地 2面採光 南向き 陽当り通風良好 システムキッチン ユニットバス 温水洗浄便座 独立洗面所 収納豊富 和室 病院近く

担当者のコメント

河合 みやび

★3LDK 駐車場あり カーポート付き
★システムキッチン 温水洗浄便座 ユニットバス
★収納豊富 陽当り通風良好 病院近く

■営業時間 9:30~20:00 
■即日案内可能!※当日・翌日のご案内はお電話でのお問合せがスムーズ
■定休日 毎週水曜日 夏季 年末年始

◇弊社ホームページよりLINEでのお問合せも好評!
◇不動産情報サイト未掲載物件、弊社ホームページに多数掲載!
◇学校区物件検索も充実!ご希望の学校区での物件探しに便利!
「リクソラ住宅販売」で検索!是非ご覧ください

他の気になる物件・他不動産会社・他サイトの掲載物件もまとめてご案内可能
リフォームやリノベーションの事もあわせてご相談下さい

【住宅ローン無料相談会 随時開催中】
〇お客様の条件にベストな住宅ローン商品のご提案
〇住宅ローンの金利や優遇率、審査基準などを詳しくご説明
〇住宅ローンとリフォームローンの一体型商品もご提案
〇仕事や収入・現在過去の借入による住宅ローンへの問題解決

是非とも弊社にお問合せ下さい

基本情報

販売戸数
1戸
総戸数
1戸
間取り / 詳細
3LDK
向き
建物面積(坪数)
79.64㎡(24.09坪)
土地面積(坪数)
80.09㎡(24.22坪)
建ぺい率 /
容積率
60%/200%
築年月
1997年7月(築28年)
駐車場 /
月額料金
有(1台)(屋根有) -
土地権利
所有権
土地
(敷金 / 保証金)
- / -
建物構造
木造 / 2階建
傾斜地部分面積
-
路地状敷地
-
私道負担面積
-
セットバック
-
高圧線下面積
-
施工会社
-
用途地域
第一種中高層住居専用
地目 / 地勢
宅地 / -
接道状況
角地(南 5.0m)(東 4.0m)
国土法届出要否
不要
都市計画
市街化区域
総区画数 /
販売区画数
1区画/1区画
現況
空家
その他
法令上の制限
-
取引態様
専属専任媒介
引渡し
即時
リフォーム
    2024年10月
取引条件の
有効期限
2026年01月25日

設備条件

設備条件
  • ペット相談 / ペット飼育可 / 陽当り良好 / リフォーム済 / 現地見学会 / フローリング / バルコニー / 都市ガス / 公営水道 / 公共下水 / 駐輪場 / バイク置場あり / システムキッチン / カウンターキッチン / 温水洗浄便座 / 洗面台 / 独立洗面台 / ユニットバス / 収納豊富
設備(その他)
    -

その他

物件番号
90486338
管理コード
-
建築確認番号
-
情報更新日
2026年01月11日
次回更新予定日
2026年01月25日
取扱会社
  • 株式会社リクソラ住宅販売
  • 大阪府寝屋川市国松町16-10  102
  • TEL:0120-088-715
  • 大阪府知事 (3) 第58221号
  • (公社)全日本不動産協会(公社)不動産保証協会(公社)近畿圏不動産流通機構(近畿レインズ)東急リバブル(株)パートナーシップ加盟店
備考
新着情報: 中古一戸建ての空室情報ならコチラ。家から152mのところには田中診療所があります。カーポート付きだから自動車やバイクを真冬の霜から守れます。快適な暮らしを送るためのお住まいを、当社スタッフがお探しいたします。ご希望の条件がお決まりであれば、当社スタッフにお気軽にお問い合わせください。

私部7丁目 中古一戸建ての他の物件

  1. 3DK (81.88㎡)

    980万円(39.58万円/坪)

周辺施設

  • 田中診療所の画像

    総合病院

    田中診療所

    152m(2分)

  • ローソン 交野倉治一丁目店の画像

    コンビニエンスストア

    ローソン 交野倉治一丁目店

    485m(7分)

  • 認定こども園私部保育園の画像

    保育園

    認定こども園私部保育園

    579m(8分)

  • ラッキー 交野店の画像

    スーパー

    ラッキー 交野店

    1036m(13分)

  • 美来診療所の画像

    内科

    美来診療所

    1147m(15分)

  • 交野市立第一中学校の画像

    中学校

    交野市立第一中学校

    1318m(17分)

  • 交野市の画像

    交野市

    1374m(18分)

  • 交野市立くらやま認定こども園の画像

    幼稚園

    交野市立くらやま認定こども園

    1411m(18分)

  • 交野みらい小学校の画像

    小学校

    交野みらい小学校

    1437m(18分)

  • すぎもと皮フ科の画像

    皮膚科

    すぎもと皮フ科

    1584m(20分)

  • こさか内科クリニックの画像

    小児科

    こさか内科クリニック

    2024m(26分)

支払いシミュレーション

月々の支払額
9.6
購入希望物件価格
万円
頭金
万円
金利
%
返済額(ボーナス1回分)
万円
返済期間

※ボーナスは自動で年2回分で計算されます。

近隣の物件

  1. 妙見東2丁目 中古一戸建て

    交野市妙見東2丁目

    5LDK (150.00㎡)

    1,900万円

  2. 妙見東 中古一戸建て

    交野市妙見東2丁目

    3LDK (90.01㎡)

    3,080万円

  3. 私部4丁目 中古一戸建て

    交野市私部4丁目

    4LDK (107.73㎡)

    1,580万円

  4. 私部2丁目 中古一戸建て

    交野市私部2丁目

    2SLDK (76.94㎡)

    1,680万円

私部7丁目 中古一戸建て

私部7丁目 中古一戸建て

1,980万円

-

3LDK(79.64㎡)

お気軽にお問い合わせください

LINEからお問い合わせ 無料お問い合わせ

株式会社リクソラ住宅販売

0120-088-715

営業時間:9:30~19:30

(休:水曜・夏季・年末年始)