私部7丁目 中古一戸建て

980万円~1,980万円

大阪府交野市私部7丁目

京阪交野線「交野市」駅徒歩15分

片町線「河内磐船」駅徒歩26分

京阪交野線「郡津」駅徒歩26分

価格
980万円~1,980万円
間取り/建物面積
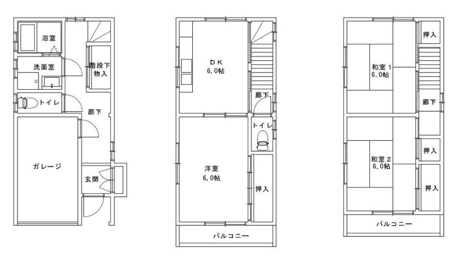
3DK~3LDK/79.64㎡~81.88㎡
所在地
大阪府交野市私部7丁目
築年
1990年3月(築35年)
駐車
有(1台)
交通

京阪交野線交野市」駅 徒歩15分

片町線河内磐船」駅 徒歩26分

京阪交野線郡津」駅 徒歩26分

私部7丁目 中古一戸建ての基本情報

物件名
私部7丁目 中古一戸建て
価格
980万円~1,980万円
建物面積
79.64㎡~81.88㎡
土地面積
14.3坪~24.22坪(47.29㎡~80.09㎡)
築年月
1990年3月(築35年)
総戸数
1戸
所在地
大阪府交野市私部7丁目
交通

京阪交野線交野市」駅 徒歩15分

片町線河内磐船」駅 徒歩26分

京阪交野線郡津」駅 徒歩26分

私部7丁目 中古一戸建ての詳細情報

設備条件
  • 駐輪場
  • バイク置場あり
設備(その他)
    -
駐車場/月額
有(1台)/-
土地権利
所有権
国土法届出
不要
用途地域
第一種中高層住居専用
取引態様
売主
引渡し
即時
備考
ぜひ一度見ていただきたい、「交野市私部7丁目 中古一戸建て」です。宝田クリニックまで403mです。中古の戸建て物件は便利な価格が魅力の1つです。駅まで徒歩15分の場所に立地しています。交野市や京阪交野線交野市付近でなら、お客様に合った一戸建てがきっと見つかります。まずはご希望条件をスタッフまでお伝え下さい。

私部7丁目 中古一戸建てのコメント(おすすめポイント)

こちらの物件から403mのところに宝田クリニックがあります。安心の前面道路6m以上の条件を備えております。駅まで歩いて15分ほどの物件です。こちらは中古一戸建ての物件です。地域密着型の当社だからこそ、ご紹介できる物件がございます。交野市の京阪交野線交野市周辺の物件情報を、当社スタッフがご案内致します。

私部7丁目 中古一戸建てで募集中の物件

  1. 24.76坪 (81.88㎡)

    980万円(68.53万円/坪)

  2. 24.09坪 (79.64㎡)

    1,980万円(81.75万円/坪)

周辺施設

  • 田中診療所の画像

    総合病院

    田中診療所

    152m(2分)

  • 宝田クリニックの画像

    総合病院

    宝田クリニック

    403m(6分)

  • 認定こども園私部保育園の画像

    保育園

    認定こども園私部保育園

    579m(8分)

  • ローソン 交野倉治一丁目店の画像

    コンビニエンスストア

    ローソン 交野倉治一丁目店

    635m(8分)

  • mandai(万代) 倉治店の画像

    スーパー

    mandai(万代) 倉治店

    863m(11分)

  • 大阪府立交野高校の画像

    高校

    大阪府立交野高校

    932m(12分)

  • ラッキー 交野店の画像

    スーパー

    ラッキー 交野店

    1036m(13分)

  • おざき内科クリニックの画像

    内科

    おざき内科クリニック

    1058m(14分)

  • 美来診療所の画像

    内科

    美来診療所

    1178m(15分)

  • 交野市立第一中学校の画像

    中学校

    交野市立第一中学校

    1318m(17分)

  • 交野市の画像

    交野市

    1395m(18分)

  • 交野市立くらやま認定こども園の画像

    幼稚園

    交野市立くらやま認定こども園

    1530m(20分)

  • すぎもと皮フ科の画像

    皮膚科

    すぎもと皮フ科

    1584m(20分)

  • ひびき眼科クリニックの画像

    眼科

    ひびき眼科クリニック

    1664m(21分)

  • 藤原皮フ科の画像

    皮膚科

    藤原皮フ科

    1664m(21分)

  • 交野みらい小学校の画像

    小学校

    交野みらい小学校

    1698m(22分)

  • こさか内科クリニックの画像

    小児科

    こさか内科クリニック

    2024m(26分)

近隣の物件

  1. 交野市妙見東2丁目

    5LDK (150.00㎡)

    1,730万円

  2. 交野市妙見東2丁目

    3LDK (90.01㎡)

    3,080万円

  3. 交野市私部4丁目

    4LDK (107.73㎡)

    1,580万円

  4. 交野市妙見東5丁目

    4LDK (97.20㎡)

    1,580万円

私部7丁目 中古一戸建て

お気軽にお問い合わせください

LINEからお問い合わせ 無料お問い合わせ

株式会社リクソラ住宅販売

0120-088-715

営業時間:9:30~19:30

(休:水曜・夏季・年末年始)