私部7丁目 中古一戸建て

9月29日 値下げ

980万円

大阪府交野市私部7丁目

京阪交野線「交野市」駅徒歩15分

片町線「河内磐船」駅徒歩26分

京阪交野線「郡津」駅徒歩26分

価格
980万円
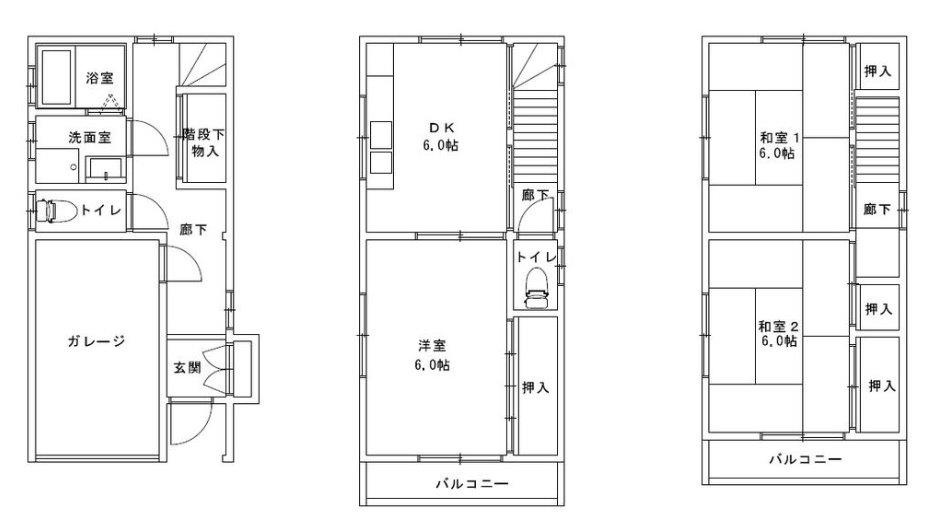
間取り
3DK
土地面積
47.29㎡
所在地
大阪府交野市私部7丁目
交通

京阪交野線交野市」駅 徒歩15分

片町線河内磐船」駅 徒歩26分

京阪交野線郡津」駅 徒歩26分

建物面積
81.88㎡
築年月
1990年3月(築36年)

現地見学会

日時 2026年2月13日 ~ 2026年5月12日
  •  ■掲載物件をご覧頂きありがとうございます■

    ・当社では随時「現地見学会」を開催しております。
    ・朝昼夜問わずご案内可能でございますのでお時間気になさらずお問合せ下さい。
    ・現地での待ち合わせ、来店してからのご案内、指定地へお迎えに上がる事も可能でございます。
    ・居住中物件の内覧は事前に見学予約が必要となります。

    【所要時間】
    〇お電話での見学予約 5分~
    〇ご来店からの見学予約 30分~
    ※お客様のご希望や、資金計画、住宅ローン、減税などのご相談も丁寧にご説明致します。

    〇現地ご案内 現地到着後30分~
    ※時間は目安となっておりますのでお客様のご都合をお申し付け下さい!
    ※また複数物件を見学する際は1件につき移動時間+30分~程度でご参考下さい。

物件の特徴

  • 独立洗面台

セールスポイント

こだわりで選びたい方におすすめ。交野市エリアで住まいをお探しなら「交野市私部7丁目 中古一戸建て」。2階にリビングがある物件です。建物面積81.88㎡の物件はいかがですか。駅から徒歩15分の物件です。交野市での住まい探しをサポート致します。ご希望の条件などがお決まりなら、当社スタッフまで是非お伝えください。お問い合わせをお待ちしております。

ポイント

交野市私部7丁目 交野市駅 3DK シャッター付車庫 リフォーム済み 2面採光 2面バルコニー 陽当り通風良好 浴室に窓あり トイレ2か所 全居室収納あり 収納豊富 和室 2階リビング 病院近く

担当者のコメント

河合 みやび

★3DK シャッター付車庫 リフォーム済み
★トイレ2か所 浴室に窓あり 全居室収納あり
★2階リビング 陽当り通風良好 病院近く

■営業時間 9:30~20:00 
■即日案内可能!※当日・翌日のご案内はお電話でのお問合せがスムーズ
■定休日 毎週水曜日 夏季 年末年始

◇弊社ホームページよりLINEでのお問合せも好評!
◇不動産情報サイト未掲載物件、弊社ホームページに多数掲載!
◇学校区物件検索も充実!ご希望の学校区での物件探しに便利!
「リクソラ住宅販売」で検索!是非ご覧ください

他の気になる物件・他不動産会社・他サイトの掲載物件もまとめてご案内可能
リフォームやリノベーションの事もあわせてご相談下さい

【住宅ローン無料相談会 随時開催中】
〇お客様の条件にベストな住宅ローン商品のご提案
〇住宅ローンの金利や優遇率、審査基準などを詳しくご説明
〇住宅ローンとリフォームローンの一体型商品もご提案
〇仕事や収入・現在過去の借入による住宅ローンへの問題解決

是非とも弊社にお問合せ下さい

基本情報

販売戸数
1戸
総戸数
1戸
間取り / 詳細
3DK
向き
-
建物面積(坪数)
81.88㎡(24.76坪)
土地面積(坪数)
47.29㎡(14.30坪)
建ぺい率 /
容積率
60%/200%
築年月
1990年3月(築36年)
駐車場 /
月額料金
有(1台) -
土地権利
所有権
土地
(敷金 / 保証金)
- / -
建物構造
木造(一部鉄骨造) / 3階建
傾斜地部分面積
-
路地状敷地
-
私道負担面積
-
セットバック
高圧線下面積
-
施工会社
-
用途地域
第一種中高層住居専用
地目 / 地勢
宅地 / -
接道状況
一方(南 公道 6.4m 間口 4.4m)
国土法届出要否
不要
都市計画
市街化区域
総区画数 /
販売区画数
1区画/1区画
現況
空家
その他
法令上の制限
-
取引態様
売主
引渡し
即時
リフォーム
    2024年10月
    壁 床 給湯器交換
取引条件の
有効期限
2026年03月13日

設備条件

設備条件
  • ペット相談 / ペット飼育可 / 陽当り良好 / リフォーム済 / 現地見学会 / フローリング / 都市ガス / 公営水道 / 公共下水 / 2面バルコニー / ビルトガレージ / 駐輪場 / バイク置場あり / 洗面台 / トイレ2ヶ所 / 独立洗面台 / 収納豊富
設備(その他)
    -

その他

物件番号
90632725
管理コード
-
建築確認番号
-
情報更新日
2026年02月27日
次回更新予定日
2026年03月13日
取扱会社
  • 株式会社リクソラ住宅販売
  • 大阪府寝屋川市国松町16-10  102
  • TEL:0120-088-715
  • 大阪府知事 (3) 第58221号
  • (公社)全日本不動産協会(公社)不動産保証協会(公社)近畿圏不動産流通機構(近畿レインズ)東急リバブル(株)パートナーシップ加盟店
備考
「交野市私部7丁目 中古一戸建て」のここがイチオシ。宝田クリニックまで403mです。2面採光となっているので、日当たり以外にも風通しも良いです。綺麗な洗面台が設置されているので、特に女性からのお問い合わせが多いです。あなたのライフスタイルに合った不動産を探しませんか。快適な暮らしが実現できるお住まいがきっと見つかります。ぜひ当社をご利用くださいませ。

私部7丁目 中古一戸建ての他の物件

  1. 3LDK (79.64㎡)

    1,980万円(82.19万円/坪)

周辺施設

  • 認定こども園私部保育園の画像

    保育園

    認定こども園私部保育園

    396m(5分)

  • 宝田クリニックの画像

    総合病院

    宝田クリニック

    403m(6分)

  • ローソン 交野倉治一丁目店の画像

    コンビニエンスストア

    ローソン 交野倉治一丁目店

    635m(8分)

  • ラッキー 交野店の画像

    スーパー

    ラッキー 交野店

    864m(11分)

  • おざき内科クリニックの画像

    内科

    おざき内科クリニック

    1058m(14分)

  • 交野市立第一中学校の画像

    中学校

    交野市立第一中学校

    1104m(14分)

  • 交野市の画像

    交野市

    1160m(15分)

  • 交野みらい小学校の画像

    小学校

    交野みらい小学校

    1265m(16分)

  • 交野市立くらやま認定こども園の画像

    幼稚園

    交野市立くらやま認定こども園

    1269m(16分)

  • こさか内科クリニックの画像

    小児科

    こさか内科クリニック

    1882m(24分)

支払いシミュレーション

月々の支払額
購入希望物件価格
万円
頭金
万円
金利
%
返済額(ボーナス1回分)
万円
返済期間

※ボーナスは自動で年2回分で計算されます。

近隣の物件

  1. 私部4丁目 中古一戸建て

    交野市私部4丁目

    4LDK (107.73㎡)

    1,580万円

  2. 妙見東5丁目 中古一戸建て

    交野市妙見東5丁目

    4LDK (97.20㎡)

    1,580万円

  3. 妙見東 中古一戸建て

    交野市妙見東2丁目

    3LDK (90.01㎡)

    3,080万円

  4. 星田西3丁目 中古一戸建て

    交野市星田西3丁目

    4LDK (158.18㎡)

    4,180万円

よく見られている物件

  1. 田口1丁目 中古一戸建て

    枚方市田口1丁目

    2LDK (54.38㎡)

    1,380万円

  2. 末広町 一戸建て

    寝屋川市末広町

    3LDK (95.64㎡)

    2,680万円

  3. 八幡三反長 未入居一戸建て

    八幡市八幡三反長

    2LDK (78.52㎡)

    4,980万円

  4. 東香里園町 中古一戸建て

    寝屋川市東香里園町

    5SLDK (144.04㎡)

    8,480万円

私部7丁目 中古一戸建て

私部7丁目 中古一戸建て

980万円

-

3DK(81.88㎡)

お気軽にお問い合わせください

LINEからお問い合わせ 無料お問い合わせ

株式会社リクソラ住宅販売

0120-088-715

営業時間:9:30~19:30

(休:水曜・夏季・年末年始)